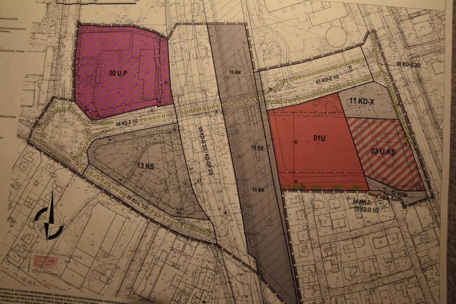
W gdyńskim InfoBoksie odbyła się dyskusja publiczna nad rozwiązaniami przyjętymi w projekcie miejscowego planu zagospodarowania przestrzennego części dzielnic Mały Kack i Redłowo, rejon ulicy Stryjskiej od ronda im. Macieja Brzeskiego do alei Zwycięstwa. Przybyło na nią kilkudziesięciu zainteresowanych mieszkańców Gdyni. Podczas spotkania pracownicy Biura Planowania Przestrzennego Miasta Gdyni przybliżyli zebranym procedurę sporządzania planu miejscowego oraz przedstawili jego główne założenia. Omówiono też zakres zmian w stosunku do obowiązujących na tym obszarze miejscowych planów zagospodarowania przestrzennego: - terenu ogródków działkowych przy alei Zwycięstwa 136 w Gdyni,- części dzielnicy Redłowo, terenu byłej zajezdni komunikacji miejskiej,- części dzielnicy Mały Kack w Gdyni, rejonu ulic Stryjskiej i Łużyckiej. Głównym założeniem projektu planu miejscowego jest wykorzystanie wyjątkowego potencjału lokalizacji – w bezpośrednim sąsiedztwie przystanku SKM i przystanków ZKM oraz Pomorskiego Parku Naukowo-Technologicznego dla rozwoju funkcji metropolitalnych. Projekt nowego planu przewiduje możliwość realizacji zabudowy biurowej o większej intensywności i wysokości, niż dopuszczają obowiązujące plany miejscowe. Równocześnie zakłada on poprawę rozwiązań związanych z funkcjonowaniem układu komunikacyjnego, w tym przede wszystkim transportu publicznego, komunikacji pieszej i rowerowej w rejonie przystanku SKM Redłowo oraz zmniejszanie barier przestrzennych spowodowanych przez układ drogowy i kolejowy. Projekt planu określa docelową szerokość pasa drogowego ul. Stryjskiej i wyznacza plac miejski w rejonie skrzyżowania. Planowana jest również przebudowa skrzyżowania ul. Stryjskiej z al. Zwycięstwa, przystanków komunikacji miejskiej oraz tras pieszych i rowerowych. Podczas spotkania widoczne było duże zaangażowanie lokalnej społeczności. Zgromadzeni brali aktywny udział w dyskusji nad planowanymi zmianami w rejonie ulicy Stryjskiej. Mieszkańcy domów jednorodzinnych, sąsiadujących z obszarem objętym projektem planu, krytycznie odnieśli się do skali budynku biurowego, który mógłby powstać na podstawie ustaleń projektu planu. Mieli też zastrzeżenia do planowanych rozwiązań komunikacyjnych, w tym możliwości dojazdu do budynku od strony al. Zwycięstwa. Znaczna część dyskusji dotyczyła obaw o potencjalny wpływ budynku biurowego na sąsiadującą zabudowę mieszkaniową. Uczestnicy spotkania odnieśli się także do zapisów projektu planu oraz przedstawili szereg uwag i propozycji zmian tych zapisów. Wyłożenie projektu planu do publicznego wglądu potrwa do 3 kwietnia w gdyńskim InfoBoksie (ul. Świętojańska 30). Szczegółowe informacje można uzyskać w Biurze Planowania Przestrzennego Miasta Gdyni (ul. Tadeusza Wendy 7/9) od poniedziałku do piątku w godz. 8.00-16.00. Są one dostępny także w Biuletynie Informacji Publicznej Miasta Gdyni na stronie internetowej pod adresem www.gdynia.pl/plany w zakładce Wyłożone do wglądu projekty planów miejscowych. Swoje uwagi natomiast będzie można składać do 17 kwietnia do prezydenta Gdyni w formie pisemnej, na adres Biura Planowania Przestrzennego Miasta Gdyni (ul. Tadeusza Wendy 7/9, 81-341 Gdynia), wraz z podaniem imienia i nazwiska (lub nazwy jednostki organizacyjnej), adresu składającego uwagę i oznaczenia nieruchomości, której uwaga dotyczy. Te zostaną rozpatrzone w terminie 21 dni od dnia upływu terminu ich składania. Rozpatrzenie uwag zostanie opublikowane w Biuletynie Informacji Publicznej Miasta Gdyni na stronie internetowej pod adresem www.gdynia.pl/plany w zakładce Wyłożone do wglądu projekty planów miejscowych. Galeria zdjęć Pobierz galerię Mieszkańcy dyskutowali o przyszłości Małego Kacka i Redłowa // fot.Lechosław Dzierżak Pobierz zdjęcie Mieszkańcy dyskutowali o przyszłości Małego Kacka i Redłowa // fot.Lechosław Dzierżak Pobierz zdjęcie Mieszkańcy dyskutowali o przyszłości Małego Kacka i Redłowa // fot.Lechosław Dzierżak Pobierz zdjęcie Mieszkańcy dyskutowali o przyszłości Małego Kacka i Redłowa // fot.Lechosław Dzierżak Pobierz zdjęcie Mieszkańcy dyskutowali o przyszłości Małego Kacka i Redłowa // fot.Lechosław Dzierżak Pobierz zdjęcie Mieszkańcy dyskutowali o przyszłości Małego Kacka i Redłowa // fot.Lechosław Dzierżak Pobierz zdjęcie Mieszkańcy dyskutowali o przyszłości Małego Kacka i Redłowa // fot.Lechosław Dzierżak Pobierz zdjęcie Mieszkańcy dyskutowali o przyszłości Małego Kacka i Redłowa // fot.Lechosław Dzierżak Pobierz zdjęcie Mieszkańcy dyskutowali o przyszłości Małego Kacka i Redłowa // fot.Lechosław Dzierżak Pobierz zdjęcie Mieszkańcy dyskutowali o przyszłości Małego Kacka i Redłowa // fot.Lechosław Dzierżak Pobierz zdjęcie Mieszkańcy dyskutowali o przyszłości Małego Kacka i Redłowa // fot.Lechosław Dzierżak Pobierz zdjęcie Mieszkańcy dyskutowali o przyszłości Małego Kacka i Redłowa // fot.Lechosław Dzierżak Pobierz zdjęcie Mieszkańcy dyskutowali o przyszłości Małego Kacka i Redłowa // fot.Lechosław Dzierżak Pobierz zdjęcie Warunki pobierania Wszelkie prawa do zdjęć lub grafik prezentowanych w ramach portalu, należą do Prowadzącego portal lub do podmiotów z nim współpracujących i podlegają ochronie prawnej. Prowadzący portal zezwala na kopiowanie i przedstawianie utworów jedynie w celach niekomercyjnych oraz pod warunkiem zachowania go w oryginalnej postaci i zachowaniem kontekstu tematu, do którego zostało wykorzystaneprzez redakcję gdynia.pl. Opublikowane materiały powinny zawsze zawierać źródło, czyli adres strony www.gdynia.pl. Na publikowanie utworów w innych celach wymagana jest zgoda właściciela strony czyli Prowadzącego portal. Opublikowano: 23.03.2018 12:45 Autor: Marta Jaszczerska-Zawadzka (m.jaszczerska@gdynia.pl) Zmodyfikowano: 23.03.2018 13:48 Zmodyfikował: Marta Jaszczerska